Dom na sprzedaż Kocmyrzów-Luborzyca, Sulechów, Pogodna

6 pokoi
154.15 m²
4 930,26 zł/m2
HME-DS-6856

760 000 zł

Dom na sprzedaż
Nowa oferta

Szczegóły oferty

Symbol oferty HME-DS-6856
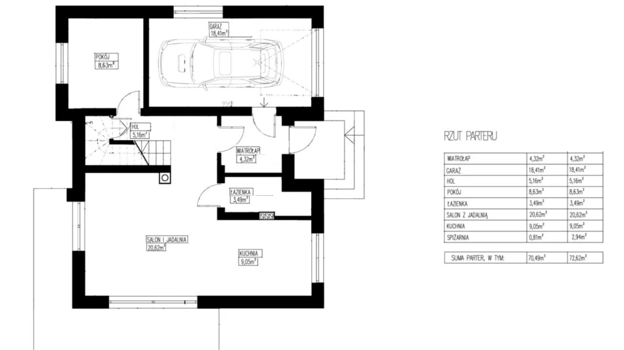
Powierzchnia 154,15 m²
Powierzchnia użytkowa [m2] 135,84 m²
Powierzchnia działki [m2] 415 m²
Liczba pokoi 6
Liczba sypialni 5
Rodzaj domu wolnostojący
Technologia budowlana pustak
Standard
Liczba pięter w budynku 1
Garaż 1
Okna PCV
Instalacje ELEKTRYCZNA, WODNA, GAZOWA
Balkon brak
Liczba tarasów 1
Zagosp. działki niezagospodarowana
Ukształtowanie działki płaska
Kształt działki prostokąt
Pokrycie dachu dachówka ceramiczna
Pozwolenie na użytkowanie w trakcie uzyskiwania
Stan budynku do wykończenia
Ogrodzenie działki siatka w ramach
Rok budowy 2025
Gaz jest
Woda jest
Dojazd droga szutrowa
Otoczenie zabudowa jednorodzinna
Ogrzewanie C.O. GAZOWE
Tarasy taras
Prąd jest
Kanalizacja brak

Opis nieruchomości

Home Expert oferuje wyjątkowe domy w Sulechowie koło Krakowa!

Marzysz o własnym, przestronnym domu w spokojnej okolicy, ale jednocześnie blisko Krakowa?  Zapraszamy do zapoznania się z ofertą nowych, solidnie wykonanych 8 domów jednorodzinnych w Sulechowie. To idealne miejsce dla rodzin, osób ceniących komfort oraz tych, którzy pragną zamieszkać w otoczeniu zieleni, z dogodnym dojazdem do miasta.

Oferowane domy – przestrzeń i funkcjonalność

Każdy dom posiada powierzchnię użytkową 136 m², z czego 117,5 m² to część mieszkalna. Przemyślany układ pomieszczeń gwarantuje funkcjonalność i komfort codziennego życia.

Cena zawiera:

  • Dom w stanie surowym zamkniętym – budynek posiada już okna oraz drzwi zewnętrzne, co zabezpiecza go przed warunkami atmosferycznymi.
  • Doprowadzenie mediów do liczników – woda, prąd, gaz, a także możliwość wyboru między szambem a przydomową oczyszczalnią ścieków.
  • Ogrodzenie całej posesji – zapewniające prywatność i bezpieczeństwo.
  • Brama wjazdowa – wygodne i estetyczne rozwiązanie zapewniające komfortowy dostęp do posesji.
  • Droga wewnętrzna z udziałem w jej własności – utwardzona (ubita z kamienia), co gwarantuje wygodny i trwały dojazd.
     

Wysoka jakość wykonania

Domy budowane są z wysokiej klasy materiałów, co zapewnia ich trwałość, energooszczędność i estetykę:

  • Ściany z pustaka ceramicznego – znakomita izolacja termiczna i akustyczna.
  • Dachówka – solidne i estetyczne pokrycie dachu.
  • Trzyszybowe okna – zapewniające doskonałą izolację termiczną i ograniczające straty ciepła.
  • Brama garażowa marki Wiśniowski – znana z trwałości i niezawodności.

Media:

Domy są przystosowane do pełnej infrastruktury:

  • Woda
  • Prąd
  • Gaz
  • Szambo lub przydomowa oczyszczalnia ścieków

Opcja wykończenia do stanu deweloperskiego

Dla klientów, którzy chcieliby wprowadzić się do niemal gotowego domu, istnieje możliwość doprowadzenia budynku do stanu deweloperskiego. To świetna opcja dla tych, którzy chcą uniknąć czasochłonnych prac wykończeniowych i szybciej cieszyć się nowym domem.

Lokalizacja – blisko Krakowa, wśród zieleni

Sulechów to spokojna i malownicza miejscowość położona w pobliżu Krakowa, co czyni ją doskonałym wyborem dla osób szukających harmonii między życiem miejskim a bliskością natury. Osiedle Pogodne zapewnia ciszę, spokój i bezpieczeństwo, jednocześnie oferując szybki dostęp do centrum miasta.

  • Cicha, spokojna okolica, idealna dla rodzin z dziećmi
  • Dogodne połączenia komunikacyjne z Krakowem i okolicznymi miejscowościami
  • W pobliżu sklepy, szkoły, przedszkola i inne niezbędne udogodnienia

Zapraszamy do kontaktu i oglądania!

W celu uzyskania dodatkowych informacji, prosimy o kontakt z naszym biurem.
Elżbieta Szpiech
Tel: +48 500 169 041

 

Lokalizacja nieruchomości

Doradca Klienta

Proszę wprowadzić poprawne imię i nazwisko
Proszę wprowadzić poprawny numer telefonu
Proszę wprowadzić poprawny adres e-mail
Proszę zaznaczyć wymagane zgody
Rozwiąż równanie:
25 6
Niepoprawny wynik